North Star Commuter Rail (Tectonic Frame Project): Studio_3 Fall_2007 Professor_Bob Ganser

Short description about each image Short description about each image Short description about each image Short description about each image Short description about each image Short description about each image Short description about each image Short description about each image Short description about each image Short description about each image Short description about each image Short description about each image Short description about each image Short description about each image Short description about each image Short description about each image Short description about each image Short description about each image Short description about each image Short description about each image

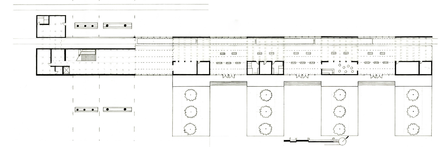
The second project of this studio utilized the same site as the bearing wall project. However, we studied and designed with a different material system. A tectonic building system is one that is comprised of smaller members, which work together to create a larger structural system. Through what I learned about the site in my first project, I wanted to create a tectonic system that spanned great distances, while creating a volume of space. This volume of space and depth of structure can integrate the interior of the building with the different layers on the site. To achieve my project goals I studied a gluelam steel truss system paired with site cast and precast concrete members.

The solid areas or servant spaces of the building became areas where the concrete system took root. This created areas of transition that the truss system spanned. A metal GDK fabric system covered the depth of the truss system while allowing light to filter into the building. This cladding application would illuminate the interior during the day and delineate the exterior facade at night. The relationship of the solid concrete mass and tectonic volume was reinforced in the exterior landscape with the planting of several groves of maple trees. These exterior vertical volumes would divide the site while drawing commuter rail patrons in and out of the building.