2008 Chase Bank Community Development Competition Entry: Studio_4 Spring 2008 Professor_Thomas Westbrook

Project team: Kyle Skar, Christine Warnert, Jake Lewis, Michael Sobol, and Jodi Wilson

Short description about each image Short description about each image Short description about each image Short description about each image Short description about each image Short description about each image Short description about each image Short description about each image Short description about each image Short description about each image Short description about each image

The Case Bank Community Development Competition was developed to benefit the lower ninth ward in New Orleans, LA. Our design studio collaborated with a local New Orleans 501 (3) (c) organization named the Renaissance Project, who is focused on redeveloping the community garden and farmers market infrastructure in New Orleans. We lived and worked on site in New Orleans for two weeks to gain a concrete understanding of community members’ needs. This immersion into the site and project constraints provided our studio with a stable foundation of knowledge to build upon.

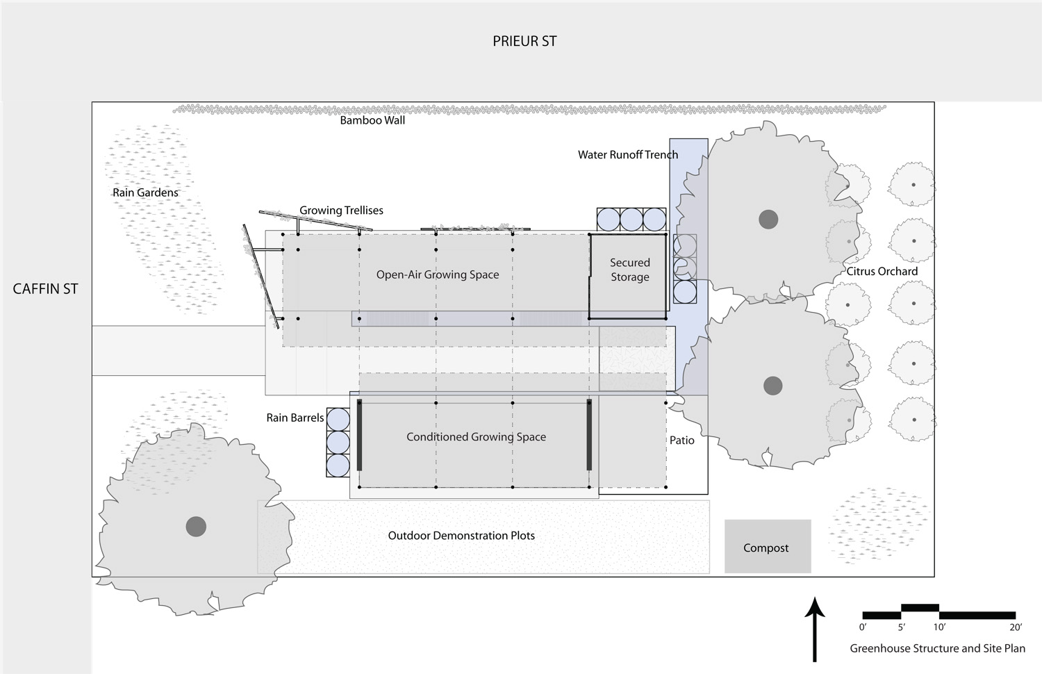
The portion of the competition entry seen here is a community greenhouse. This element of the project produces seed plants for various community gardens. Once the plants have matured to a healthy life stage they are transported outside and into the gardens. Citizens are able to buy stock in these plants, therefore providing a family with locally produced vegetables and fruits. The footprint of the greenhouse site is defined by the foundation of a house that was devastated in Hurricane Katrina. In order to create the most adaptable and affordable structure we chose a system that consists of aluminum fence members and connections, dimensional lumber, and a polyurethane membrane. This greenhouse is light on the site while re-creating a much-needed visual presence in the community.